Oferta

  • Powierzchnia
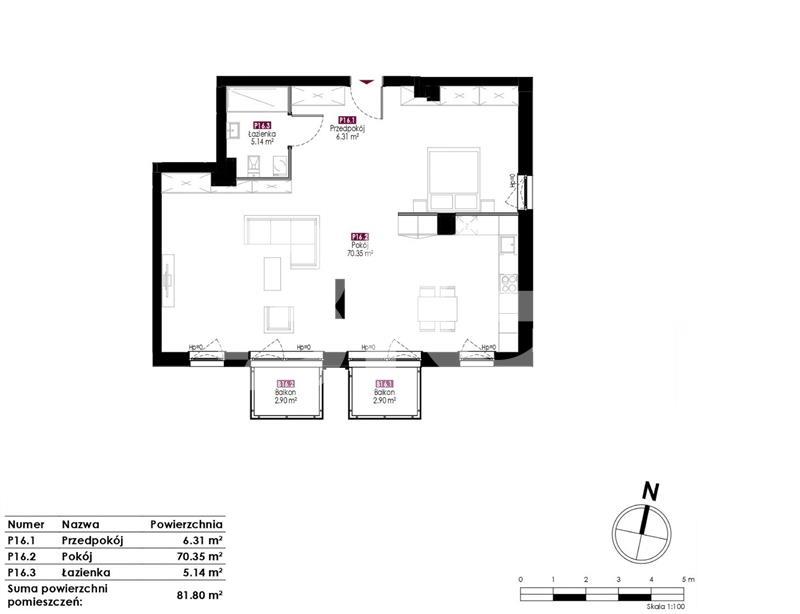
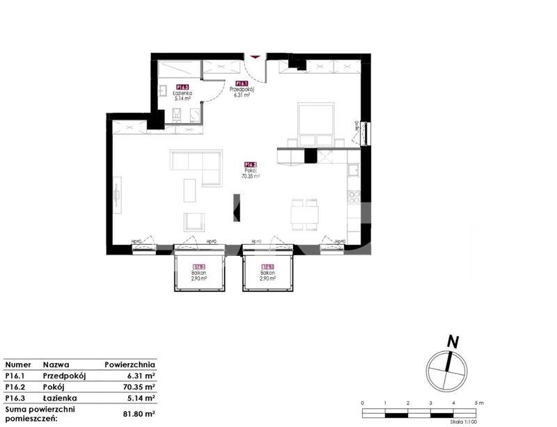
    81.80 m2
  • Liczba pokoi
    2
  • Piętro
    -3
  • Cena za metr
    16998.78 zł
  • Nr oferty
    BH08226
  • 1 390 500 zł

Lokal użytkowy - Sprzedaż

Na sprzedaż lokal o powierzchni 81,80 m2 położony na 2. piętrze nowoczesnej inwestycji w sercu Wrzeszcza Górnego. Lokal składa się z powierzchni open space, z miejscem na aneks kuchenny oraz toalety. Z lokalu wyjście na dwa balkony. 
To doskonała propozycja dla osób szukających nieruchomości inwestycyjnej, biura lub lokalu usługowego w prestiżowej lokalizacji Gdańska.

Cena : 1 390 500,00 zł netto + 23% VAT

Atuty inwestycji:
• Nowoczesny, kameralny budynek z windą
• Hala garażowa i miejsca postojowe naziemne
• Komórki lokatorskie i sieć miejska ciepłownicza
• Wysoki standard wykonania, lokale w stanie deweloperskim
• Możliwość wykończenia „pod klucz”

Lokalizacja:
Wrzeszcz Górny – jedna z najbardziej pożądanych dzielnic Gdańska. Doskonały dostęp do komunikacji miejskiej, uczelni, biur i centrów handlowych (Galeria Bałtycka, Manhattan, Metropolia).

Termin zakończenia inwestycji: listopad 2026 r.

Zapraszamy do kontaktu.

Lokalizacja
Szczegółowe informacje
  • Nr oferty
    BH08226
  • Typ transakcji
    Sprzedaż
  • Typ nieruchomości
    Lokal użytkowy
  • Lokalizacja
    Gdańsk Wrzeszcz Górny
  • Ulica
    Słowackiego Juliusza
  • Powierzchnia całkowita
    81.80 m2
  • Rodzaj własności
    Własność
  • Powierzchnia działki
    0.00 m2
  • Piętro
    -3
  • Ilość pięter budynku
    3
  • Liczba pokoi
    2
  • Rok budowy
    2025
  • Typ ogrzewania
    C.o. miejskie
  • Stan techniczny
    Deweloperski
  • Garaż
    Garaż pod budynkiem
  • Umeblowanie
    Nie
  • Winda
    Tak
  • Typ budynku
    Obiekt komercyjny
  • Gaz
    Brak
  • Kanalizacja
    W budynku
  • Prąd
    W budynku
  • Szambo
    Nie
  • Woda
    W budynku
  • Zaplecze socjalne
    Tak
  • Cena m2
    16998.78 zł
  • Cena
    1 390 500 zł
  • Opłaty
    0 zł
Opiekun nieruchomości
Adrian Falow
Adrian Falow
nr licencji: