Mieszkanie w Gdańsku Siedlcach przy ul. Kartuskiej 96.
To znakomita lokalizacja, która zapewnia doskonały dojazd do centrum miasta i dostęp do komunikacji miejskiej.
Do Starego Miasta są zaledwie 2 km.
Przystanki tramwajowe oraz autobusowe znajdują się w bezpośrednim sąsiedztwie budynku.
Mieszkanie położone na III piętrze kamienicy.
Wszystkie okna mają wystawę południową - nie od strony ulicy Kartuskiej.
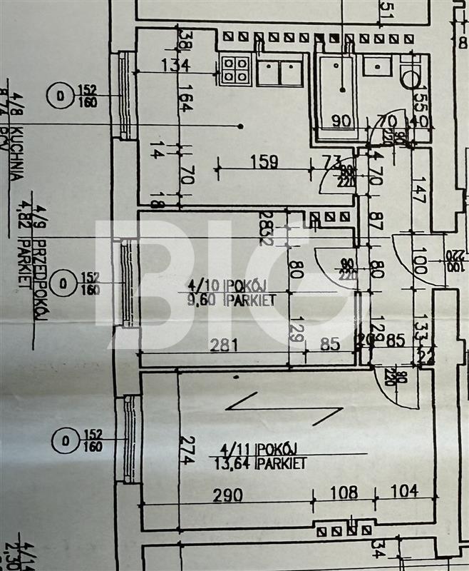
Mieszkanie składa się z:
- z dwóch niezależnych pokoi o powierzchni 13,64 i 9,60mkw,
- oddzielnej, jasnej kuchni o powierzchni 8,74mkw,
- łazienki o powierzchni 3,10mkw,
- przedpokoju o powierzchni 4,82mkw.
Mieszkanie wymaga remontu.
Centralne ogrzewanie z sieci miejskiej.
Ciepła woda ogrzewana za pomocą pieca gazowego.
Przed budynkiem oraz w podwórzu znajdują się bezpłatne, ogólnodostępne miejsca parkingowe.
Mieszkanie dostępne od zaraz.
Zapraszam na prezentację.
- Administratorem Państwa danych osobowych jest BIG Property Sp. z o.o. .
- Kontakt z Administratorem jest możliwy za pomocą poczty e-mail pod adresem: kontakt@bigproperty.pl lub też za pomocą poczty tradycyjnej pod adresem: ul. Uphagena 27, 80 – 237 Gdańsk.
- Przetwarzamy Państwa następujące dane osobowe: imię, nazwisko, numer telefonu, adres e-mail, dane adresowe (ulica, numer domu, kod pocztowy, miasto), nazwa przedsiębiorstwa, NIP, dane adresowe przedsiębiorstwa.
- Przetwarzamy Państwa dane osobowe w następujących celach: – zawarcia i wykonania łączącej nas z Państwem umowy – art. 6 ust. 1 b RODO; – wykonania ciążących na nas obowiązków prawnych (wystawianie i przechowywanie faktur i innych dokumentów księgowych) – art. 6 ust. 1 c RODO; – dochodzenia roszczeń i marketingu bezpośredniego naszych usług
- Będziemy przetwarzać Państwa dane osobowe przez czas trwania umowy a następnie nie dłużej niż przez okres czasu po którym przedawniają się roszczenia wynikające w umowy lub też okres czasu przez jaki przepisy prawa nakazują przechowywać dane (np. przepisy prawa podatkowego w stosunku do dokumentacji księgowej).
-
Państwa dane osobowe są przetwarzane automatycznie lub ręcznie z zapewnieniem niezbędnych środków ochrony danych osobowych w postaci fizycznej, technicznej i organizacyjnej przed przypadkowym lub umyślnym zniszczeniem, utratą, zmianą lub dostępem osób trzecich w zgodzie z obowiązującymi przepisami prawa.Z uwagi na fakt przetwarzania przez nas Państwa danych osobowych przysługują Państwu następujące uprawnienia:– uprawnienie do żądania wglądu do Państwa danych osobowych;– uprawnienie do żądania sprostowania Państwa danych osobowych;– uprawnienie do żądania usunięcia Państwa danych osobowych;– uprawnienie do żądania ograniczenia przetwarzania Państwa danych osobowych;– uprawnienie do wniesienia sprzeciwu wobec przetwarzania Państwa danych osobowych;– uprawnienie do przenoszenia Państwa danych osobowych;– uprawnienie do wniesienia skargi do organu nadzorczego.