Oferta

  • Powierzchnia
    64.90 m2
  • Liczba pokoi
    3
  • Piętro
    2
  • Cena za metr
    10462.25 zł
  • Nr oferty
    BH08381
  • 679 000 zł

Mieszkanie - Sprzedaż

Trzypokojowe mieszkanie we Wrzeszczu - ul. Do Studzienki 3.

Wszystkie zalety centrum w zasięgu ręki - sklepy, usługi, komunikacja miejska, a od lasu dzieli nas kilkuminutowy spacer.

Mieszkanie położone na II piętrze trzypiętrowej kamienicy.
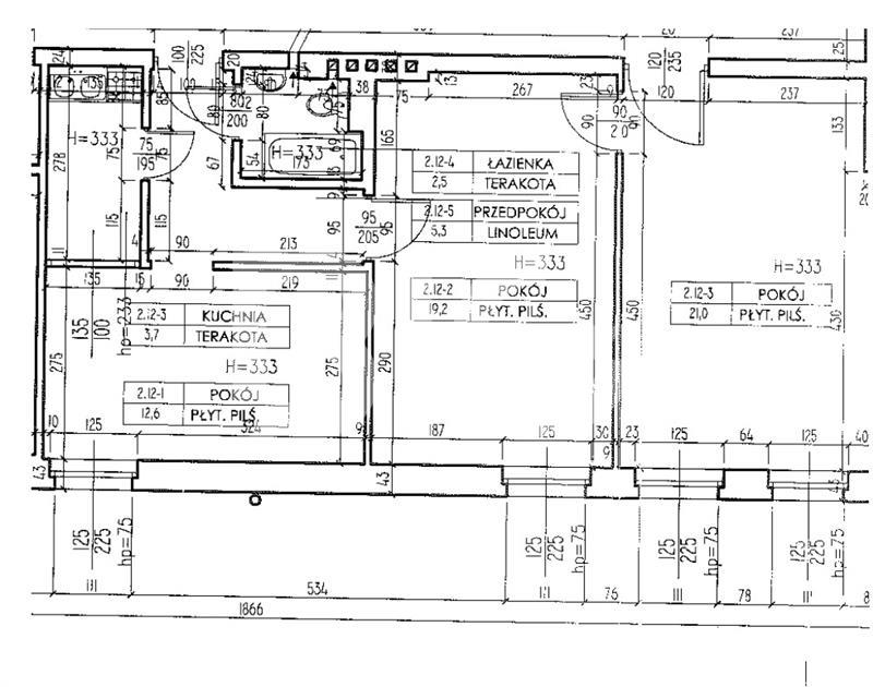
Obecny układ funkcjonalny:
- pokój 21mkw,
- pokój 19,2mkw,
- pokój 12,6mk,
- kuchnia 3,7mkw,
- łazienka 2,5mkw,
- przedpokój 5,3mkw.

Mieszkanie wymaga generalnego remontu, ale ma ogromny potencjał aranżacyjny.
Wysokość pomieszczeń to 3,33m.

Mieszkanie ma dwa wejścia z klatki schodowej, co daje również możliwość wygodnego, funkcjonalnego wydzielenia dwóch lokali - np. kawalerki i mieszkania dwupokojowego.
Mieszkanie ogrzewane z miejskiej sieci ciepłowniczej, ciepła woda za pomocą piecyka gazowego.
Do mieszkania przynależy duża piwnica i jest możliwość korzystania ze strychu.
Miesięczne opłaty do wspólnoty to ok. 560zł latem i 1150zł zimą.

Mieszkanie dostępne od zaraz.

Zapraszam na prezentację.


Lokalizacja
Szczegółowe informacje
  • Nr oferty
    BH08381
  • Typ transakcji
    Sprzedaż
  • Typ nieruchomości
    Mieszkanie
  • Lokalizacja
    Gdańsk Wrzeszcz Górny
  • Ulica
    Do Studzienki
  • Powierzchnia całkowita
    64.90 m2
  • Rodzaj własności
    Własność
  • Piętro
    2
  • Ilość pięter budynku
    3
  • Liczba pokoi
    3
  • Rok budowy
    1900
  • Typ ogrzewania
    C.o. miejskie
  • Stan techniczny
    Do remontu
  • Garaż
    Brak
  • Umeblowanie
    Nie
  • Wc osobno
    Nie
  • Winda
    Nie
  • Cena m2
    10462.25 zł
  • Cena
    679 000 zł
  • Opłaty
    0 zł
Opiekun nieruchomości
Paweł Grabowski
Paweł Grabowski
nr licencji: 11374